Politics & Government

Columbus residents object to Macon Road developer’s plan. Commission votes

Columbus resident Karlene Forbes is a U.S. Army veteran who moved into her home on Pond View Drive in 2023.

She was promised by the builders that the area near the pond would be a beautiful area with a walkway around a retention pond, called Sears Lake.

Instead of a scenic view of a pond that could be enjoyed by the community, Forbes told the Ledger-Enquirer, she saw an unkept wooded area home to snakes and beavers that the city could not maintain because it is private property.

After receiving no help from the homeowners’ association, Forbes took it upon herself to clear the brush and beaver dams blocking drainage systems.

“It was nothing but snakes back here,” she said. “And I’m terrified of snakes, believe it or not.”

Columbus resident Karlene Forbes cleared brush, trash and other debris from Sears Lake to beautify the area for the neighborhood’s enjoyment after failing to determine whether it was the responsibility of the city or the homeowners association.
Columbus resident Karlene Forbes cleared brush, trash and other debris from Sears Lake to beautify the area for the neighborhood’s enjoyment after failing to determine whether it was the responsibility of the city or the homeowners association. Brittany McGee bmcgee@ledger-enquirer.com

Not only did she spend over $2,000 clearing the area, but Forbes also took steps to beautify it, adding benches and lighting.

Concerns about making the pond more visible, especially at night, arose because of the problems with people from outside the community coming to the private pond. Forbes worries about overfishing and the drugs and other illicit material people left behind from activities hidden by the brush.

A “No Fishing, No Trespassing” sign has been blocked by overgrown vegetation at Sears Lake, a retention pond residents complain has not been maintained and is causing flooding.
A “No Fishing, No Trespassing” sign has been blocked by overgrown vegetation at Sears Lake, a retention pond residents complain has not been maintained and is causing flooding. Brittany McGee bmcgee@ledger-enquirer.com

So, when signs went up announcing that Jeff Lindsey Communities wants to rezone 4937 Macon Road, near her neighborhood and the pond, to build townhomes, Forbes felt compelled to oppose the plans because she worried what an increased nearby population would mean if the pond and the land are not maintained.

“I went to Afghanistan and Iraq,” Forbes said. “Noises scare me. I get paranoid, so I purposely picked this property by the water.”

More people potentially coming to the pond because of a lack of maintenance, signage showing that it’s private property and fencing would cause a disturbance, she said.

Forbes was one of six residents who spoke against the proposed development by Jeff Lindsey at a Jan. 7 Columbus Planning Advisory Commission meeting. The commission unanimously voted against the plan that still could be presented to the Columbus Council next month.

Columbus residents attend a Jan. 7, 2026, Columbus Planning Advisory Commission meeting to speak against a rezoning request for 4937 Macon Road, where a developer wants to build townhomes.
Columbus residents attend a Jan. 7, 2026, Columbus Planning Advisory Commission meeting to speak against a rezoning request for 4937 Macon Road, where a developer wants to build townhomes. Brittany McGee bmcgee@ledger-enquirer.com

Why build townhomes on Macon Road in Columbus

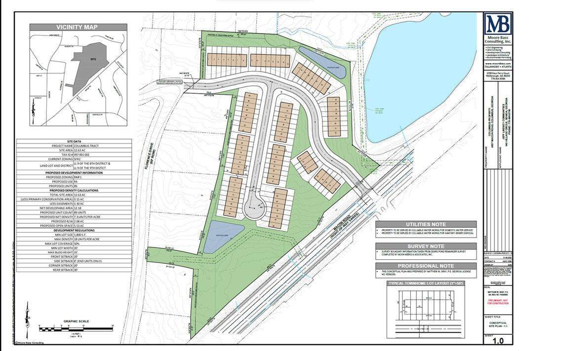
Originally, Jeff Lindsey Communities planned for 92 townhomes in the development but decreased it to 89 in the latest plan presented to the PAC.

The only public entrance to the proposed neighborhood with townhomes would open from Macon Road past Florence Drive.

Jeff Lindsey Communities requested to rezone 4937 Macon Road in Columbus to build 89 townhomes.
Jeff Lindsey Communities requested to rezone 4937 Macon Road in Columbus to build 89 townhomes. Columbus Consolidated Government

Two proposed stormwater management facilities, also known as retention ponds, are included in the plan. The larger existing retention pond, Sears Lake, is to the east of the project.

The developer would build two roads. One road would connect with Florence Drive, but it would be gated off and only accessible for emergency vehicles. This road and entrance became a cause for concern for one resident, Sandra Mailey, who is worried the road would take up half of her driveway.

Mailey moved into her home about 14 year ago, she told the Ledger-Enquirer, and did not know the driveway of her decades-old home was so close to the property line and could become a problem.

“I didn’t plan on moving,” she said. “And now, I have in the back of my head, if this is going on, how am I going to sell my house? If I sell it, nobody’s going to buy it.”

This is the area where Jeff Lindsey Communities would place an emergency-access-only entrance into a proposed townhome development at 4937 Macon Road in Columbus.
This is the area where Jeff Lindsey Communities would place an emergency-access-only entrance into a proposed townhome development at 4937 Macon Road in Columbus. Screenshot from CCG-TV

Steven Jones, with McKagen Jones Law Firm, representing Jeff Lindsey Communities, explained there would be a Knox Box on the gate preventing the general public from accessing the entrance on Florence Drive.

Only people with keys, which would be provided to emergency personnel and first responders, would have access to open the gate, Jones said.

Attorney Steven Jones of McKagen Jones law firm speaks during a Jan. 7, 2026, Columbus Planning Advisory Commission meeting, representing Jeff Lindsey Communities in their request to rezone 4937 Macon Road.
Attorney Steven Jones of McKagen Jones law firm speaks during a Jan. 7, 2026, Columbus Planning Advisory Commission meeting, representing Jeff Lindsey Communities in their request to rezone 4937 Macon Road. Brittany McGee bmcgee@ledger-enquirer.com

The other road in the development ends in a cul-de-sac, ensuring Macon Road would be the only way to enter or exit the neighborhood.

Townhomes would be attached in the style Jeff Lindsey Communities typically builds with variations in the facade to give homes character, Jones told the PAC.

“We might call it a modern farmhouse or something to that effect,” he said.

This is a rendering of a proposed townhome development by Jeff Lindsey Communities at 4937 Macon Road in Columbus.
This is a rendering of a proposed townhome development by Jeff Lindsey Communities at 4937 Macon Road in Columbus. Courtesy of Steven Jones, McKagen Jones Law Firm

There is an affordability crisis in metro areas across the state, Jones said, and developers are looking at ways to lower the cost for new construction.

“Townhomes and attached products provide a wonderful opportunity to do that because you have efficiencies in use of land,” he said. "And you have efficiencies in use of building materials.”

Since attached residences share walls on one or two side, that reduces the cost of construction material for each dwelling, Jones said.

The current single-family zoning allows a density of up to four homes per acre, Jones said, with 10,000 square-foot lots. The requested rezoning would allow a maximum density of up to 18 townhomes per acre, he said, but their proposed plan would have about seven units per acre.

“What that traffic study that was attached to the staff’s report concluded is that there is a moderate increase over the (single-family zoning),” Jones said. “In other words, the density is not maxed out here at 18. It sits in between or actually lower than the average of what you could do under the (multifamily zoning) and what you can presently do under the (single-family zoning).”

The traffic study found the increase in traffic from the townhomes, compared to the increase from a potential single-family home development, would have negligible impacts on Macon Road, Jones said.

This is a rendering of a proposed townhome development by Jeff Lindsey Communities at 4937 Macon Road in Columbus.
This is a rendering of a proposed townhome development by Jeff Lindsey Communities at 4937 Macon Road in Columbus. Courtesy of Steven Jones, McKagen Jones Law Firm

The study recommends adding a right-turn lane and appropriate signage, he said. Since Macon Road is under the jurisdiction of the Georgia Department of Transportation, Jones said, they would coordinate with GDOT for access permits and to incorporate pedestrian and bicycle connections to the road.

They would also need to monitor traffic for at least a year after the development is completed to confirm the projections were correct, according to Jones’ presentation.

When it comes to stormwater drainage, developers are required to ensure the flow of water off their site doesn’t change, Jones said in response to a commissioner’s question about stormwater concerns.

Matt Gray, the civil engineer Jeff Lindsey Communities is working with, is obligated under state law to ensure peak flows aren’t increased when the infrastructure is built, Jones told the Ledger-Enquirer.

Not discussed during the PAC meeting, as residents expressed flooding concerns, was the impact of GDOT widening Macon Road, Gray told the L-E.

“GDOT doesn’t really have to abide by any stormwater regulations when they do their expansion,” he said. “It’s considered necessary utilities and infrastructure, so that could have made the problem worse (with) GDOT kind of being able to do whatever they want. That’s just an impact that we would need to get in and analyze later down the line.”

Resident opposition

Around 180 people communicated their opposition to the rezoning request, Morgan Shepard, principal planner for the Columbus Planning Department, said during the PAC meeting.

Karen Gaskins, who lives in the Sears Woods subdivision and is running to represent District 1 on the Columbus Council, spoke first during the public comment portion of the meeting.

Gaskins, whose neighborhood opposed two rezoning requests for a different parcel of land off Macon Road, told the commission flooding was a primary concern for their opposition to increasing the density of the neighborhoods in this area then and remains a concern now.

She said residents of Sheraton Forest and the Florence Drive area asked her for help because of her prior experience opposing this type of rezoning request.

“Please remember nothing has been done to address the existing flood issues,” Gaskins told commissioners.

Runoff from Macon Road is supposed to empty into creeks and retention ponds, she said, but there is so much water that it “looks like a river” flowing down Cal Court and goes over the bank of a nearby creek to enter the backyards of homes in Sheraton Forest.

Gaskins shared an aerial photo of the retention pond for Sears Pond South, which shows a wooded area.

“It looks like a forest to me, instead of a retention pond,” she said. “As I’ve researched retention ponds, I’ve learned that the issue of ownership and maintenance has become a huge problem in Columbus.”

Jeff Lindsey Communities developed Sears Pond and Sears Pond South, she said. Stagnant water is on the other side of Pond View Drive because a lack of maintenance caused a pipe under the road to become clogged, preventing water from moving through it to drain the pond, Gaskins alleged.

While speaking Jan. 7, 2026, in opposition of a rezoning request for 4937 Macon Road, residents of Pond View Drive complained to the Columbus Planning Advisory Commission about the stagnant water on their street caused by poor maintenance of a nearby retention pond.
While speaking Jan. 7, 2026, in opposition of a rezoning request for 4937 Macon Road, residents of Pond View Drive complained to the Columbus Planning Advisory Commission about the stagnant water on their street caused by poor maintenance of a nearby retention pond. Brittany McGee bmcgee@ledger-enquirer.com

The developer said their HOA is responsible for maintaining the retention ponds, she said, but residents in Sears Pond and Sears Pond South did not know about this.

Residents haven’t received help from the company that manages their HOA, L.S. Management, Gaskins said, and the city does not have an ordinance to handle who is responsible for maintaining retention ponds.

This is an issue she raised with “several” Columbus councilors, Gaskins said.

“We are going to be working to develop a city ordinance to handle that,” she said.

Jack Lockwood, a Florence Drive resident, said the townhomes would not fit with the character of the neighborhoods around it and there is not enough of a buffer planned to separate his neighborhood from the proposed one.

“A narrow strip of trees does not change the fact that high-density townhomes are being placed directly against quiet, single-family neighborhood homes,” Lockwood said. “The transition is abrupt and disruptive, despite that small buffer.”

This is a rendering of a proposed townhome development by Jeff Lindsey Communities at 4937 Macon Road in Columbus.
This is a rendering of a proposed townhome development by Jeff Lindsey Communities at 4937 Macon Road in Columbus. Courtesy of Steven Jones, McKagen Jones Law Firm

The proposed development would increase noise, which Lockwood said already can be loud at the end of Florence Drive near Macon Road. He also had concerns about the traffic flow during drop-off and pickup hours for the nearby Reese Road Leadership Academy.

Lockwood also expressed concern about how the proposed cut into Florence Drive would impact his neighborhood.

Forbes, Lockwood and other residents said the lack of maintenance of retention ponds causes flooding. One resident, Crystal White, said she has spent $14,000 on lifts to stabilize her property about two to three years after buying the home eight years ago.

She and her husband moved to Texas but returned to Columbus a few months ago and found half of their property had dropped.

“Next week, I owe $35,000 to have them stabilize my property to keep it from falling,” White said. “It’s already dropped an inch and a half. Our driveway is completely caving in.”

Other concerns about the development include that the townhomes and increased population would lower the value of their houses and could cause an increase in crime.

“There were some murders down there on Reese Road,” Forbes told the L-E. “It’s already close to home. I just feel like that’s going to add to it.”

Forbes’ neighbor, Carol Gardner, has similar worries.

“If they build 92 homes, it’s going to be 92 more people that’s going to be walking through our backyards, trying to go fishing,” she said. “I don’t like that either.”

When speaking during the PAC meeting, Forbes said she did not have confidence in any new development or retention ponds being maintained.

“I think they’re just saying whatever they need to say right now to get approval,” she said during the meeting. “And then they’re going to go right back to what they do.”

HOA Response

Several neighbors said Jeff Lindsey owns L.S. Management, the company that manages their HOA. Jones and L.S. Management deny this is the case. Jeff Lindsey Communities conveyed the property to the HOA about six years ago, Jones told the L-E.

“We understand that their Homeowners Association is not happy with the homeowners association management company they’re employing,” Jones said. “If that’s the case, the homeowners should come together in their homeowners association and get a new management company. We don’t control that management company.”

Simone Justesen, with L.S. Management & Associates, told the L-E that the entity is an independent management firm contracted by the association and is operating “entirely separately from any developer or builder.”

When it comes to concerns about ongoing flooding issues and the maintenance of retention ponds, only one retention pond is owned by the association, Justesen said.

Tax assessor records indicate this pond was turned over to the association in 2020, she said, but it doesn’t appear the transition was clearly communicated to management.

“The larger retention pond, referred to as the lake, remains owned by Jeff Lindsey,” Justesen said. “Based on information presented at the meeting, this pond and the associated drainage into it appear to be the primary contributors to the flooding concerns.”

L.S. Management’s responsibilities are administrative, she said, and include carrying out the policies and decisions of the association’s board. They have no role in constructing homes or exercising declarant authority, Justesen said.

At Sears Pond, Jeff Lindsey remains the official declarant and board of directors until the community is formally turned over to the homeowners, at which point they will elect their own board, she said.

The HOA’s annual budget is $14,350, Justesen said. This results from 41 homes paying $350 each, she said, assuming every homeowner pays on time.

There is over $14,000 in unpaid assessments that have accumulated over the years, she said, and the HOA’s ability to maintain common areas is “directly affected by nonpayment.”

Property owners sometimes believe there is an outside source of funding, Justesen said, and that paying late only impacts themselves. This creates frustration because owners are unhappy with limited maintenance, she said, but the association cannot perform necessary work without the funds owed.

“Management companies are frequently blamed for these challenges, but we do not make board decisions — we implement them,” Justesen said. “We are proud of the work we have done for Sears Pond and for the many communities that have trusted us for more than a decade, including those that returned after trying other management options.”

Although the PAC unanimously voted to deny the rezoning request, Jeff Lindsey Communities has the option to bring the request to the Columbus Council for consideration.

Columbus Councilor Byron Hickey, who represents this community in District 1, told the Ledger-Enquirer, ifthe request appears before the council, he would vote the way his constituents would like him to vote.

This story was originally published January 15, 2026 at 1:16 PM.

Brittany McGee
Columbus Ledger-Enquirer
Brittany McGee is the community issues reporter for the Ledger-Enquirer. She is a 2021 graduate of the University of North Carolina at Chapel Hill, where she earned her bachelor’s degree in Media and Journalism with a second degree in Economics. She began at the Ledger-Enquirer as a Report for America corps member covering the COVID-19 recovery in Columbus. Brittany also covered business for the Ledger-Enquirer.
Get unlimited digital access
#ReadLocal

Try 1 month for $1

CLAIM OFFER